SBK - SKOÇ Buhar Kazanı

SBK - SKOÇ Buhar Kazanı

SBK SKOÇ Buhar Kazanı - Sıvı ve Gaz Yakıtlı, Üç Geçişli, Buhar Kazanı

SBK-Üç Geçişli Buhar Kazanı, işletmelerin buhar ihtiyacını en yüksek verimlilikle karşılamak için tasarlanmış, sağlam ve güvenilir bir çözümdür. Skoç tip buhar kazanları, yüksek performanslı yapıları ile enerji tasarrufu sağlar, işletmelere uzun vadeli maliyet avantajı sunar. Üç geçişli ısı transfer sistemi sayesinde maksimum verim elde edilir. Sıvı, gaz ve katı yakıtlarla uyumlu çalışabilen bu kazanlar, geniş uygulama alanlarıyla her türlü endüstriyel buhar ihtiyacına hitap eder.

  • 100 kg/h ile 15.000 kg/h 
  • 3-10 bar
  • %90'a kadar verimlilik sağlar.
  • Üç geçişli wet back tasarımı
  • Çevre dostu tasarım
  • Yüksek enerji tasarrufu
  • Uzun ömürlü ve bakım kolaylığı
  • Gelişmiş güvenlik ve özellikleri
  • Katı, sıvı ve gaz yakıtlara uyumluluk
  • Buhar odası tasarımı

Meksis Mekanik Sistemler A.Ş., ihtiyacınıza uygun 100 kg/h ile 15.000 kg/h arasında buhar üretimi sağlayan buhar kazanları üretmektedir. Kazanlar, farklı yakıt tiplerine uyumlu olup, 3-10 bar arasında esnek çalışma basıncı ile geniş bir uygulama yelpazesi sunar.

  • Endüstriyel Prosesler
  • Sterilizasyon
  • Otoklav
  • Tekstil Sektörü
  • Hastaneler
  • Kauçuk Sektörü
  • Beton Kürleme
  • Rafineri ve Petrokimya
  • Gıda Sektörü

 

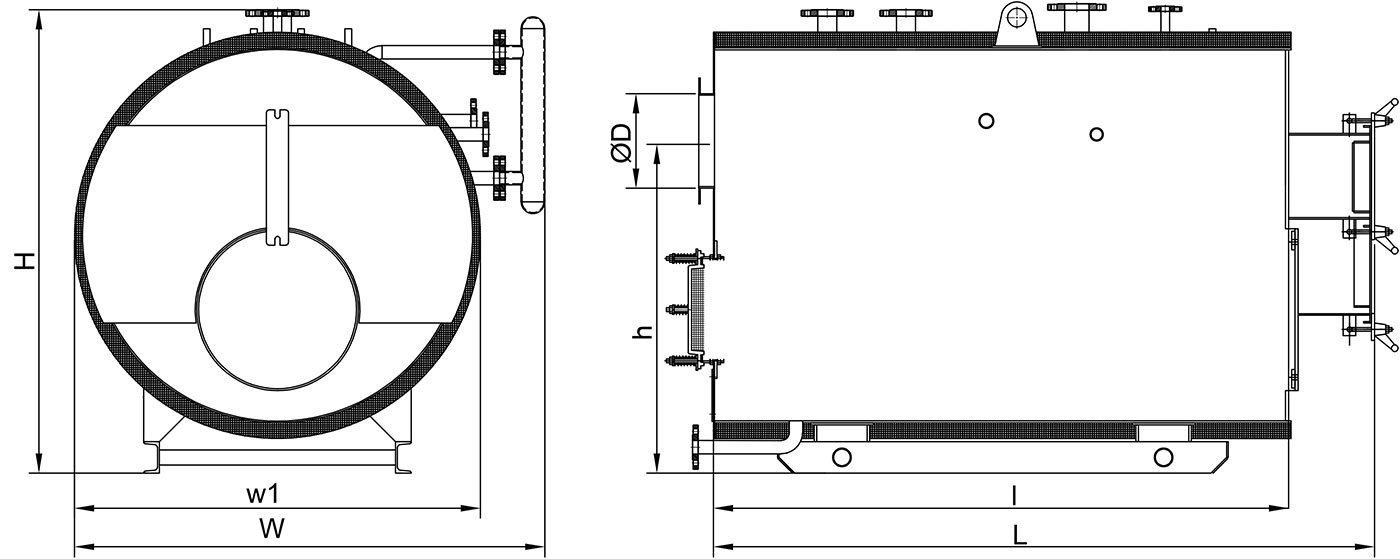
Teknik Özellikler  Birim SBK200 SBK400 SBK500 SBK800 SBK1000 SBK1250 SBK1500 SBK1800 SBK2000 SBK3000 SBK4000 SBK5000
Kapasite kg/h 200 400 500 800 1000 1250 1500 1800 2000 3000 4000 5000
Kapasite kW 128 256 320 512 640 799 959 1151 1279 1919 2558 3198
Su Hacmi 0,33 0,52 0,77 1,18 1,54 1,72 2,27 2,54 3,24 4,1 6,4 7,62
Karşı Basınç mbar 2,02 2,26 2,4 2,85 3,5 4,85 5,63 5,97 6,15 6,8 7,9 8,5
L mm 1450 1550 1615 2115 2150 2350 2490 2640 2850 3000 3580 4180
W mm 1220 1375 1425 1525 1650 1760 1870 1890 2040 2180 2290 2240
H mm 1200 1350 1400 1500 1680 1730 1875 1915 2050 2240 2315 2475
ØD mm 250 250 300 300 350 350 350 350 380 500 500 500
w1 mm 965 1120 1230 1320 1495 1530 1675 1710 1820 2020 2095 2240
h mm 815 1020 975 1090 1140 1210 1290 1290 1350 1570 1650 1690
l mm 1270 1350 1440 1870 1900 2100 2190 2350 2560 2710 3285 3890